Community Center
A new community center for an affordable housing project in Southeast Portland. The project included an office, restroom, kitchenette, storage, and indoor and outdoor gathering space.

Peninsula Children's Center
Renovation to a day care center in North Portland that included expansion of the infant and toddler areas, a new outdoor deck, and play area improvements.

Head Start Day Care
Conversion of classrooms into a head start day care center with a new play area at a school in Northeast Portland.

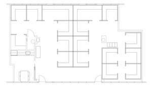
The Bakken Building
The Bakken Building in Northeast Portland was rehabilitated for commercial leasing for restaurant, retail, and office space. The project included a seismic upgrade, new north facade, and life safety improvements.

The Meader Building
Trimet's south operations building in downtown portland was altered to accommodate the new south light rail turn-around. This design-build project included a rebuilt facade, interior alterations, life safety improvements, a design review process, and zoning code adjustments.

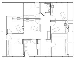
Couch Street Apartments
This 1906 apartment building in Northwest Portland's Alphabet Historic District underwent design review for facade restorations, rehabilitation of existing apartments, and renovation for new apartments.

Irvington Manor
A separate entrance serves this new two bedroom condominium in Portland's Irvington neighborhood, which was added to the existing four unit building as part of improvements and renovations.

Consulting Projects
As a project architect or as a consultant assisting owners, contractors or other design professionals, these projects included technical consulting for code or zoning requirements, building envelope detailing, feasibility studies, and independent document review.

English Learning Center, Northeast Portland

Lents Baptist Church, Southeast Portland

Pine Street Apartments, Southeast Portland

Food distribution warehouse, Tualatin, Oregon

Affordable Housing, Southeast Portland

Medical Offices, Northeast Portland

Medical Billing Offices, Northeast Portland

Dental Offices, Molalla, Oregon

Veterinary Clinic, Southwest Portland

Projects with Other Firms
Projects designed by other firms with Allen Webb, Architect AIA as a design team member.

Lillis Hall, University of Oregon
The green building concepts behind this LEED Silver building included natural ventilation, daylighting, thermal mass, a green roof, and photovoltaic cells sandwiched in the atrium curtain wall and skylights.
With SRG Partnership Architects, Inc.

Neurological Sciences Institute
Laboratory and office space for neurological sciences and vaccine and gene therapy research, connected by a central atrium lobby.
With SRG Partnership Architects, Inc.
Photographs by Rick Keating

Long Marine Lab
Overlooking Monterey Bay, this building featured teaching labs, a lecture room, gift shop, offices, and a visitor's center.
With SRG Partnership Architects, Inc.

Legacy Children's Hospital
A major remodel for a new pediatric intensive care unit and isolation rooms, a new play area and kitchen, rehabilitation of patient rooms in the main hospital and nursing wing, renovation of the short stay and neo-natal intensive care units, and new labor and delivery rooms.
With SRG Partnership Architects, Inc.

Lewis and Clark Plaza
Affordable housing and a Lewis and Clark visitor's center in downtown Vancouver, Washington.
With Emmons Architects, Inc.

Bureau of Environmental Services Laboratory
Laboratory, testing, and office space in North Portland.
With SERA Architects, P.C.

Multnomah Hotel
A major renovation and seismic upgrade for new hotel suites in downtown Portland.
With SERA Architects, P.C.

Imperial Garage
Renovation and seismic upgrade of a garage in downtown Portland, Oregon.
With SERA Architects, P.C.

Mahaffey Hall
A new dorm at Linfield College in McMinville, Oregon.
With Michael and Kuhns Architects, P.C.

Ambulatory Surgery Center
Surgical suites and medical and dental offices in Richmond, Virginia.
With Steele + Associates, Architects P.C.

Cary 2000
This affordable housing project of an entire city block in Richmond, Virginia included new apartment building and townhouses, a renovation for new apartments, existing townhouse rehabilitations, and a new community gathering space.
With Steele + Associates, Architects P.C..

© Webb Architecture, LLC